製品紹介
シャフトレス・スパイラル・コンベヤ(無軸スクリューコンベヤ)とは

無軸スクリューコンベヤはその名の通り、スクリューに軸がないコンベヤです。
元々は動物の骨や皮等の廃棄物を搬送するために開発され、搬送物の臭気や付着による閉塞に対して問題を解決してきました。
国内では下水処理場の脱水汚泥搬送用として採用され、実績を増やしております。
構造と原理


無軸スクリューコンベヤは駆動部、ケーシング(トラフ)、スクリューから構成される非常にシンプルな構造です。
トラフ内に設置された樹脂ライナー上をスクリューが低速で回転することで搬送物を運びます。
搬送部はトラフにて密閉構造となるため回転部に手が入らない等安全面にも優れています。
スクリューは高張力鋼製が標準であり、耐摩耗、高強度搬送を可能としています。
名称と機能

①電動機 | どのメーカー様の電動機でも対応出来ます |
|---|---|
②減速機 | 主にサイクロ減速機・ギヤ減速機を使用します |
③管台 | SUS304・SUS316・STPG |
④エンドプレート | SUS304・SUS316・SS400+塗装 |
⑤スパイラル羽根 | 高張力鋼・SUS304・SUS316 |
⑥ライナー | 超高密度ポリエチレン・SUS304・SUS316・高張力鋼 |
⓻トラフ | SUS304・SUS316・SS400+塗装 |
⑧トラフカバー | SUS304・SUS316・SS400+塗装 |
⑨投入口 | SUS304・SUS316・SS400+塗装 |
⑩排出口 | SUS304・SUS316・SS400+塗装 |
無軸スクリューコンベヤの特徴
軸がないため機器をコンパクトにすることができ、付着性の高い搬送物を搬送した際も閉塞の可能性が少なく、ひも状の搬送物に対しても絡みにくいという特徴があります。
また、スクリュー端部(反駆動側)にベアリングの設置が不要の片持ち構造であり、
1台で最大30mまで搬送可能※1、
後段の機器に直接接続する事が可能です(レイアウトフリー)。
無軸スクリューコンベヤは水平設置(0°)の他、~30°までの傾斜設置および垂直設置(90°)が可能です。※2
スクリューは滑りの良い超高分子量ポリエチレン製ライナー上を低速で回転しているので低騒音です。
また、密閉構造の為搬送物の飛散・臭気漏れもありません。
コンベヤは構成部品点数が少ないため故障が少なく、日常点検も目視確認、電流値確認程度であるため日々のメンテナンス労力を大幅に削減することが可能です。
※1 8m以上の機種は分割での納入となります。お客様にて機器を設置頂いた後に、弊社にてSVを派遣、溶接にてスクリューを接続致します。
※2 搬送物性状によりますので別途ご相談をお願い致します。
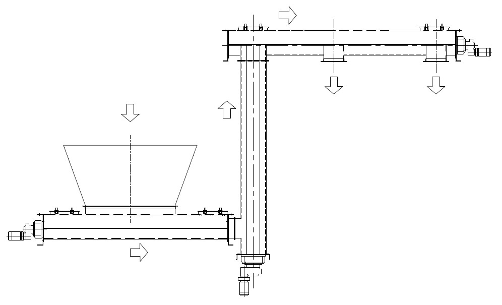
組み合わせ例

- ホッパーからの切り出し
- 押し込み接続
- 垂直搬送
- 押し込み接続
- 引き搬送
- 分配排出




